Modulo Atención Médica
Especificaciones
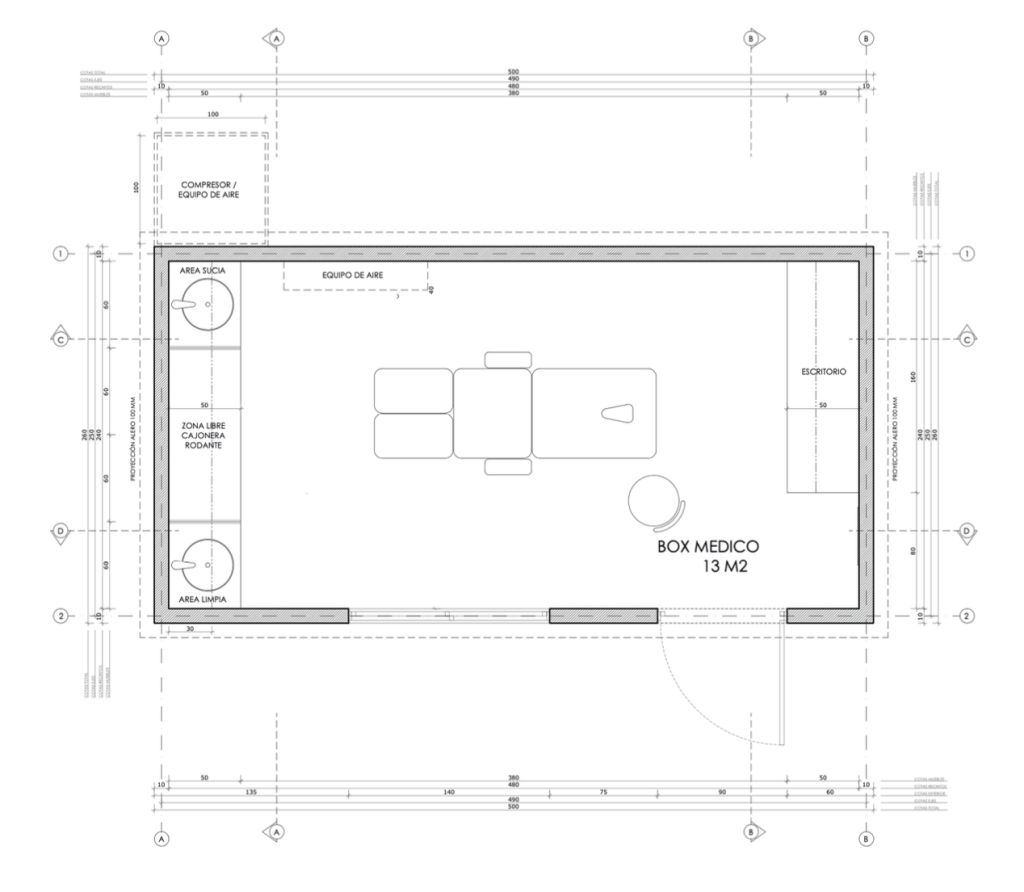
Características Generales
- Dimensiones Exterior: Largo: 5,00 mts / Ancho: 2,60 mts / Alto: 2,60 mts.
- Dimensiones Interior: Largo: 4,80 mts / Ancho: 2,40 mts / Alto: 2,30 mts.
Materialidad /Estructura
- Estructura basada en paneles galvanizados.
- Piso recubierto con vinil termosoldado (color gris).
- Guardapolvo liso con retorno de 90o
- Instalación eléctrica embutida según norma.
- Equipo de aire acondicionado frio / calor de 9.000 BTU / h. Tipo Split.
- Enchufes y focos LED 18 watts empotrados en cubierta.
- Arranque eléctrico para Camilla.
- Red de aire, agua y desagüe.
- 1 Ventana lateral tipo corredera PVC, termo panel 1400X1200 mm.
- 1 Puerta abatible vidriada de acceso a box Médico 2,00X0,90 mt.
- Techo hermético, que no permita filtraciones (emballetado).
- Gabinete compresor.
- Terminaciones
Muebles
- 2 muebles clínicos con cubiertas post-formada (Box Médico y Administrativo).
- 2 muebles aéreos (Box Médico y Administrativo).
Equipamiento
- No incluye Equipamiento
![]()
Aire Acondicionado 9.000 BTU.

Mueble clinico Cigala

Luz LED 18W

Mueble Administrativo

Aislamiento Lana Mineral

Poyos de Hormigón

Tablero Electrico

Separadores de Area

Canaleta Agua Lluvia

Estructura de acero
Imagenes Modulo Médico
Agenda una reunion con nuestro equipo
Resuelve todas tus dudas en un instante. Elige una fecha y agenda una reunión en Google Meet.