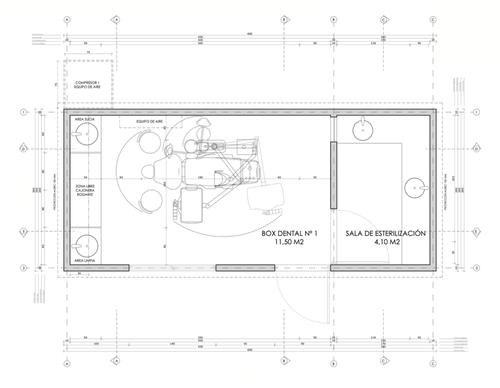
Modulo Odontológico + Esterilización
Especificaciones
Características Generales
- Dimensiones Exterior: Largo: 6,00 mts / Ancho: 2,60 mts / Alto: 2,60 mts.
- Dimensiones Interior: Largo: 5,80 mts / Ancho: 2,40 mts / Alto: 2,30 mts.
Materialidad /Estructura
- Estructura basada en paneles galvanizados.
- Piso recubierto con vinil termosoldado (color gris).
- Guardapolvo liso con retorno de 90o
- Instalación eléctrica embutida según norma.
- Equipo de aire acondicionado frio / calor de 9.000 BTU / h. Tipo Split.
- Enchufes y focos LED 18 watts empotrados en cubierta.
- Arranque eléctrico para sillón dental Amaro.
- Red de aire, agua y desagüe.
- 1 Ventana lateral tipo corredera PVC, termo panel 1400X1200 mm.
- 1 ventana abatible PVC, para sala de esterilización.
- 1 Puerta abatible vidriada de acceso a box dental 2,00X0,90 mt.
- 1 Puerta abatible vidriada de acceso a Esterilización 2,00X0,90 mt.
- Techo hermético, que no permita filtraciones (emballetado).
- Gabinete para compresor.
- Terminaciones.
Muebles
- 2 Muebles clínicos con cubiertas post-formada (Box Dental y Sala Esterilización).
- 1 Muebles aéreos (Box Dental).
Equipamiento
- Sillon Amaro Excellence
- Compresor de aire
![]()
Aire Acondicionado 9.000 BTU.

Mueble Clinico Cigala

Luz LED 18W

Aislamiento Lana Mineral

Poyos de Hormigón

Tablero Electrico

Separadores de Area

Canaleta Agua Lluvia

Estructura de acero

Sala de Rayos X Plomada

Sillon Dental Amaro Excellence
Imagenes Modulo
Agenda una reunion con nuestro equipo
Resuelve todas tus dudas en un instante. Elige una fecha y agenda una reunión en Google Meet.