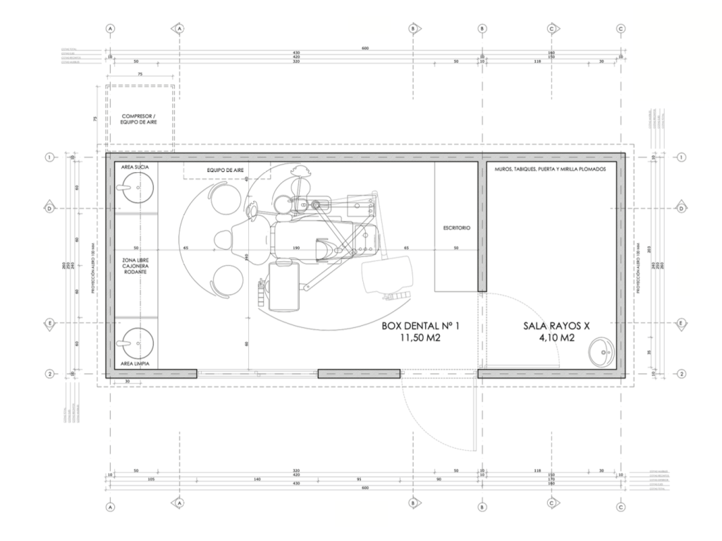
Modulo Odontológico + Rayos X
Especificaciones
Características Generales
- Dimensiones Exterior: Largo: 6,00 mts / Ancho: 2,60 mts / Alto: 2,60 mts.
- Dimensiones Interior: Largo: 5,80 mts / Ancho: 2,40 mts / Alto: 2,30 mts.
Materialidad /Estructura
- Estructura basada en paneles galvanizados.
- Muros Plomados en Sala Rayos X.
- Piso recubierto con vinil termosoldado (color gris).
- Guardapolvo liso con retorno de 90o
- Instalación eléctrica embutida según norma.
- Equipo de aire acondicionado frio / calor de 9.000 BTU / h. Tipo Split.
- Enchufes y focos LED 18 watts empotrados en cubierta.
- Arranque eléctrico para sillón dental Amaro.
- Red de aire, agua y desagüe.
- 1 Ventana lateral tipo corredera PVC, termo panel 1400X1200 mm.
- 1 Puerta abatible vidriada de acceso a box dental 2,00X0,90 mt.
- 1 Puerta y mirilla plomada.
- Techo hermético, que no permita filtraciones (emballetado).
- Gabinete para compresor.
- Terminaciones.
Muebles
- 2 Muebles clínicos con cubiertas post-formada (Box Dental y Administrativo).
- 1 Muebles aéreos (Box Dental).
- 1 Mueble Lavamanos (Rayos X)
Equipamiento
- Sillon Amaro Excellence
- Compresor de aire
- Equipo de Rayos X Mural O Pedestal
![]()
Aire Acondicionado 9.000 BTU.

Mueble Clinico Cigala

Luz LED 18W

Mueble Area Sucia

Aislamiento Lana Mineral

Poyos de Hormigón

Tablero Electrico

Separadores de Area

Canaleta Agua Lluvia

Estructura de acero

Sala de Rayos X Plomada

Sillon Dental Amaro Excellence
Imagenes Modulo
Agenda una reunion con nuestro equipo
Resuelve todas tus dudas en un instante. Elige una fecha y agenda una reunión en Google Meet.